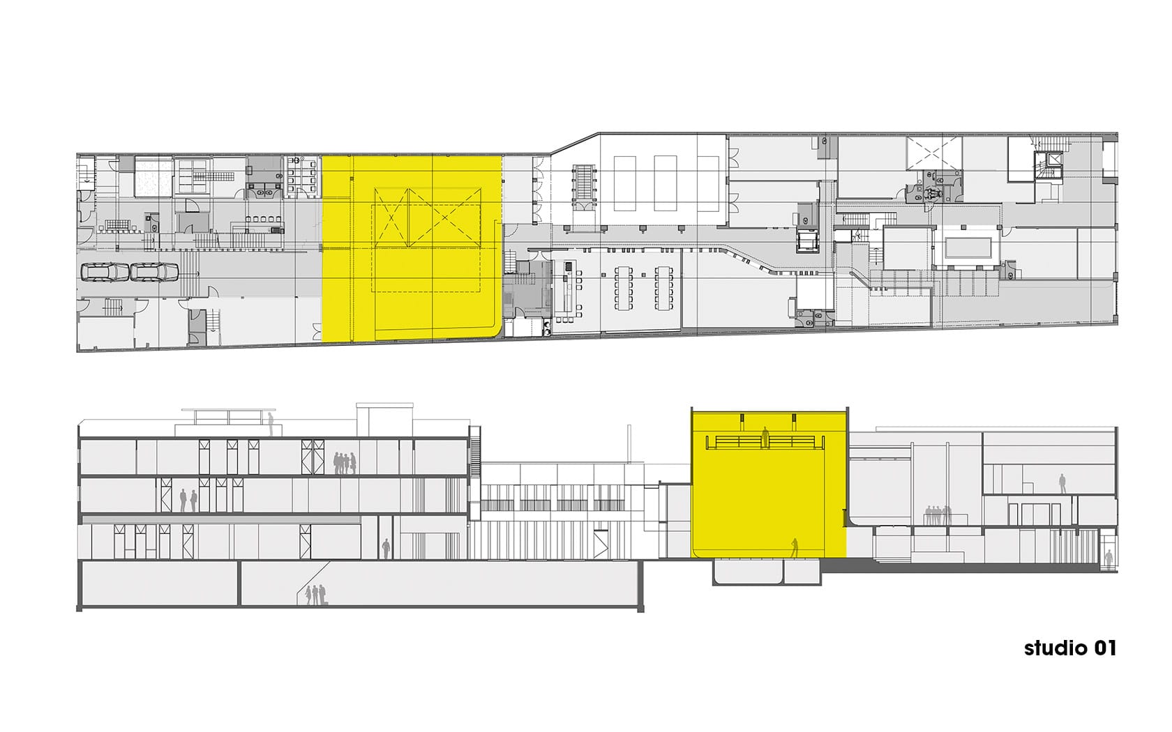
Studio 01 Big Studio
- Planta de 900m2
- Altura de 17m
- Parrilla operable en toda la superficie a 12m en la base
- Calefacción + aire acondicionado
- Sala de maquillaje y pelo
- Sala de vestuario
- Entrada de camión con dársena de descarga para pala hidráulica
- Techo corredizo para ingreso de luz natural
- Bar/barra
- Comedor + cocina industrial
- 4 baños y duchas en la planta del estudio
- Baños públicos para eventos
- Entrada al público con gabinete de seguridad
- Espacio de living con Wi-Fi
- Acceso a patio de 200m2 para expansión


























































































































































