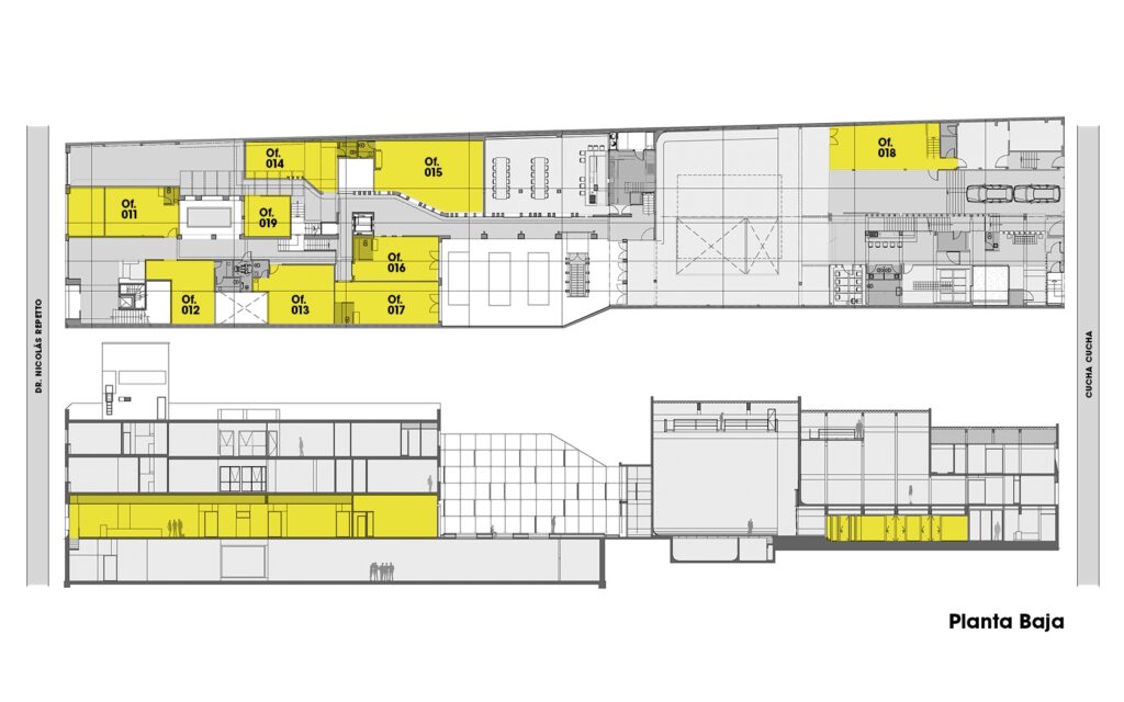
PLANTA BAJA

La planta baja de Bubble Studios posee una superficie de 1700 m2. Conecta el Estudio 1 “Big Studio” y las diversas oficinas de la planta con el Yard, y el Resto. Tiene acceso por las calles Cucha Cucha y Dr. Nicolás Repetto.

NEWS

No hay subcategorías disponibles.

To top