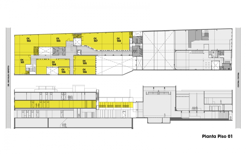
1ER PISO

El primer piso de Bubble Studios tiene una superficie de 1500 m2, cuenta con distintas oficinas de múltiples usos y pasillos techados con vistas al corazón de los estudios “Yard / Patio Interno”

NEWS

No hay subcategorías disponibles.

To top