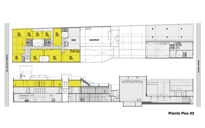
2DO PISO

Con una superficie de 1500 m2, el segundo piso de Bubble Studios dispone de salas de distintas características y dimensiones, además de ofrecer acceso directo al SUM y al Rooftop.

NEWS

No hay subcategorías disponibles.

To top